QSG-C6033

Product Features

Stretch ceiling made from high-quality anodized aluminum profiles, these lights offer flexible installation options, uniform and soft lighting, and seamless, large-area illuminated ceiling surface with simple, advanced, and futuristic design features, significantly enhances the sophistication of space. Customizable in shape, size, and color to meet specific brightness requirements, these lights seamlessly integrate light, design, and client preferences. More better than traditional lighting that merely integrates seamlessly into the space, these fixtures create a comfortable, sophisticated, and visually expressive environment. They are primarily used in commercial spaces, public and office areas, advanced residential settings, photography studios, broadcast studios, hospitals, and other environments with stringent lighting requirements.

Applicable Scenarios

Widely used in indoor, office, shopping malls, hotels and other spatial scenarios.

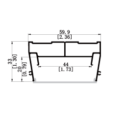
Dimensional Drawing
Product Composition